List and sell your property for free
21,308 free listings of property ads.
 See all Properties  See all Properties

Large sized unit available for short term Let (6 months+)

  
  
  
  
  
  
  
  
  
  
  
  

€ 3,500

£3,038.11
$4,099.20

Large sized unit available for short term Let (6 months+)

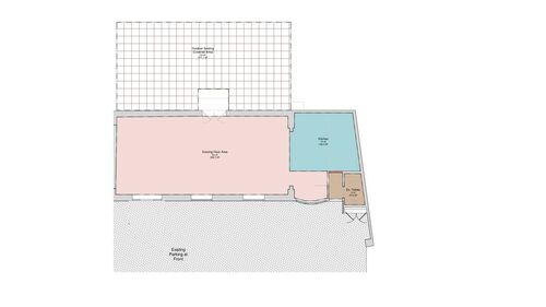
Large-sized unit available immediately for short-term Let ( 6 months+):
(Unit was formerly used as a Restaurant.)
Rent: £3500/month (Commercial Use Class: E)
Very close to A20 Sidcup by-pass road with proximity to Queen Mary hospital and Sidcup/Chislehurst business centres.
Map: https://maps.app.goo.gl/7GieiCo4nF2fPj9A9
We have an amazing open-plan, well-sized (67 sq meters) unit available for immediate rental in the Chislehurst area.
The unit comes with ample parking spaces, a functional commercial kitchen setup, a Utility area, a storage area, and separate ladies' and gentlemen's toilet facilities.

Commercial

Property ID: 80189

For:
Rent
Type:
Restaurant/café/pub/bar
Structure:
Timber, Brick, Concrete.
No. of units:
1 unit
Extras:
Car park, Deliveries yard.

United Kingdom

Greater London

Address:
Perry St, Chislehurst BR7 6HA
Chistlehurst

Contact me about this property for rent

Private Seller
Please solve the captcha.