List and sell your property for free
21,202 free listings of property ads.
 See all Properties  See all Properties

CRYSTAL RIVER - Plantation Village office plaza

  
  
  
  
  
  

€ 109,000

£94,868.15
$128,260.30

CRYSTAL RIVER - Plantation Village office plaza

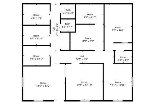
(5) Exam rooms, (1) Reception room, Visitor lobby area, (1) Doctor's office. 08/21/2021 Re-roof torch system on the flat roof only and 08/25/2022 Re-roof with shingles on the main building. This building was flooded during Hurricane Milton on 10/09/2024, with 1 inch of water intrusion. All Renovations have been completed, ready to move in and begin operations.

SALE NOTES
Located in a highly sought-after area, this medical condo unit offers a fantastic opportunity for buyers to create their ideal medical or office space. Situated within a well-established medical plaza, the property is easily accessible and provides ample parking for both guests and employees.

This unit presents a blank canvas, allowing the buyer to design and customize the space to suit their specific needs, whether for medical practice or professional office use. With its prime location, spacious layout, and flexibility, this property is perfect for any buyer looking to establish a presence in a thriving area. Annual lease avaibale at $1500 a month.

Office

Property ID: 76389

For:
Sale
Type:
Building
Condition:
2nd hand

Floor area:
1435 m²
Built in:
1983
Presently:
Empty
Structure:
Concrete.
No. of rooms:
more than 5 rooms
No. of floors:
Ground Floor
Extras:
Car park.

USA

Florida

Address:
9030 W Fort Island Trl Crystal River, FL 34429
Crystal River

Contact me about this property for sale

Private Seller
Please solve the captcha.