List and sell your property for free
21,306 free listings of property ads.
 Back to Property Details  Back to Property Details

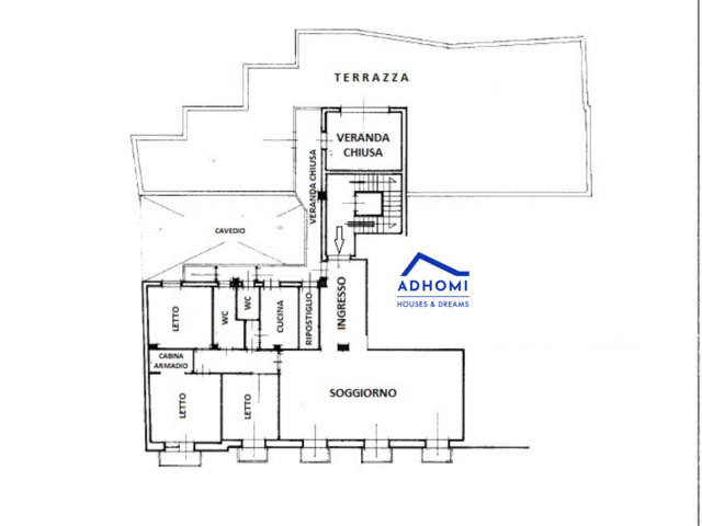
Centro storico Cagliari con grande terrazza e garage - Photo Gallery