List and sell your property for free
18,430 free listings of property ads.
 Back to Search Results  Back to Search Results

🏡 2 Unfinished 2nd-Floor Apartments

  
  
  
  
  
  
  
  
  

€ 149,000

£131,462.70
$172,482.40

🏡 2 Unfinished 2nd-Floor Apartments

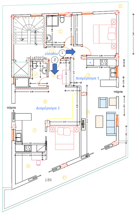
An excellent opportunity to acquire a valuable investment in a vibrant and family-friendly neighborhood of the southern suburbs of Athens. Located on the 2nd floor (109.22 sq.m. total), the property is divided into two independent apartments:
● Apartment A: 55.22 sq.m.
● Apartment B: 53.90 sq.m.

Both units offer uninterrupted views of Mount Hymettus, presenting a versatile space with endless potential for customization and enjoyment. Offered in unfinished condition, the property is attractively priced at €1.366,97/sq.m., including a 240/1000 ownership share of the plot.

✨ Property Features
● 2 Unfinished apartments – ready to be tailored to your personal taste
● Digital Building Identity
● Building permit issued: 24/01/1997
● Elevator shaft in place (ready for installation)
● No private parking, but easy on-street parking available
● Backyard - with secure space for motorcycle or scooter

📍 Location & Advantages Ideally situated on Agiou Dimitriou Avenue, offering direct access to public transport, schools, shops, and all essential amenities.
Nearby points of interest:
● 🚇 8 min to Agios Dimitrios & Dafni Metro Stations
● 🛍️ 8 min to Athens Metro Mall
● 🌊 10 min to Alimos & Palaio Faliro beaches
● 🌳 2 min to Asyrmatos Park
● 🏞️ 13 min to Elliniko Metropolitan Park
● 🎾 1–3 min walk to schools (all levels) & public tennis court
● 🏛️ Two large squares just a 2-minute walk away
● 🌄 Beautiful views of Mount Hymettus

A smart choice for investors or homeowners looking to design and complete 2 new apartments in a well-connected area of the southern suburbs of Athens.

Apartment

Property ID: 75301

For:
Sale
Type:
Flat
Habitable:
No
Condition:
To restore

Floor area:
109 m²
Built in:
1997
Presently:
In construction
Structure:
Brick, Concrete.
No. of bathrooms:
2
No. of bedrooms:
2 Bedrooms
Floor:
Any
Extras:
Balconies, Terrace.

Greece

Attiki

Address:
Agiou Dimitriou Avenue 202, 17341, Athens
Agios Dimitrios
Close to:
School, Kindergarten, Bus stop, Shopping area, Park, Public square.
Setting:
City, Beach.

Contact me about this property for sale

Private Seller
Please solve the captcha.